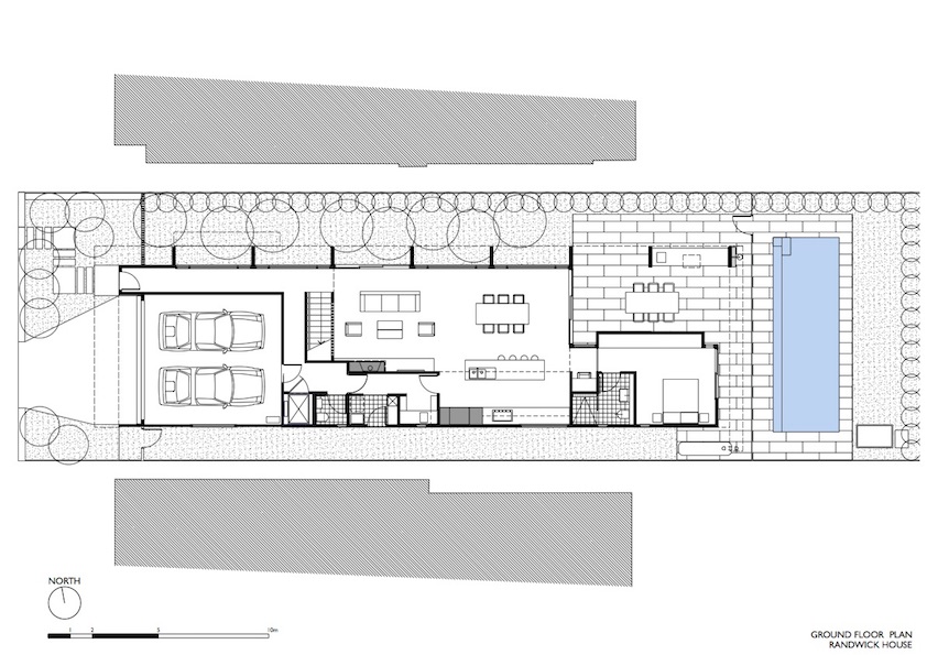
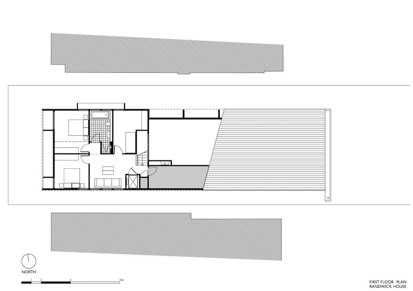
Randwick House

“Every day I’m finding myself saying I’m really pleased we went ahead with this plan, I’m really pleased we’re here, I’m really pleased we did what we did. People just walking their dog will stop or come back and say, ‘love your house’ or, ‘you’ve done a great job,’ and they haven’t even got inside the front door, and I think the real quality of this house is inside the front door.” Helen Lewis, owner.